Apartament de vanzare 3 camere decomandat Mihai Viteazul bloc cu lift
Trei Stejari, Sibiu, SibiuApartament de vanzare 3 camere decomandat Mihai Viteazul bloc cu lift
124 950 €
1 865 €/m²
Apartament de vânzare
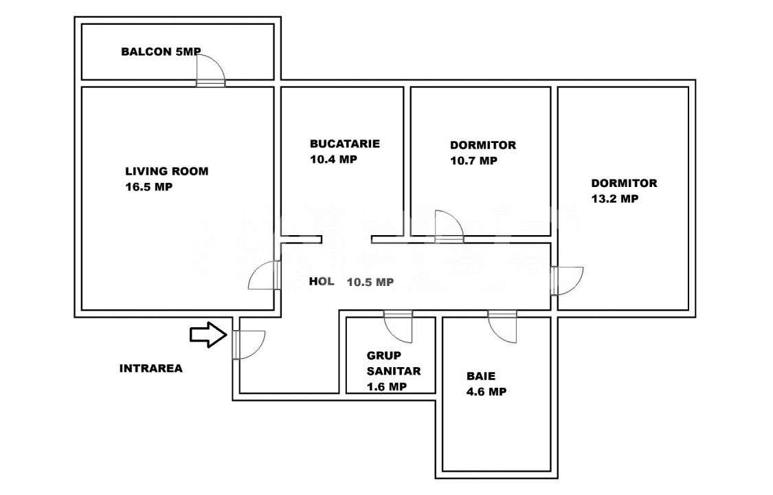
Suprafață utilă:
67 m²
Numărul de camere:
3
Încălzire:
fără informații
Etaj:
4
Chirie:
fără informații
Stare:
fără informații
Tip proprietate:
locuință nouă
Forma de proprietate:
fără informații
Liber de la:
fără informații
Tip vânzător:
agenție
Informații suplimentare:
fără informații
Descriere
ID: 9958431
Vrei să primești notificări cu anunțuri similare?
Activează alertele și nu pierde nicio ofertă
Istoric și statistici
Ultima actualizare: 4.12.2025
Dată
Modificare
Preț
XXXXXXXX
XXXXXXXX
XXXXXXXX
XXXXXXXX
XXXXXXXX
XXXXXXXX
XXvizualizări
XXsalvări
Conectează-te sau creează un cont pentru a accesa istoricul complet al anunțurilor, inclusiv modificările de preț
Harta
TABOO Imobiliare
TABOO.roApartamente de vânzareNoi3 camereSibiuSibiuTrei StejariApartament de vanzare 3 camere decomandat Mihai Viteazul bloc cu lift