79 990 €
#Chilipir: 2 camere · TVA inclus | bloc 2025| Tomis Plus - Palazu Mare
Tomis Plus - Boreal, Constanta, Constanta
- Numărul de camere
- 2 camere
- Suprafață
- 54 m²
- Prețul pe metru pătrat
- 1481 €/m²
- Etaj
- 2 etajul
Vezi descrierea anunțului
Vezi descrierea anunțului
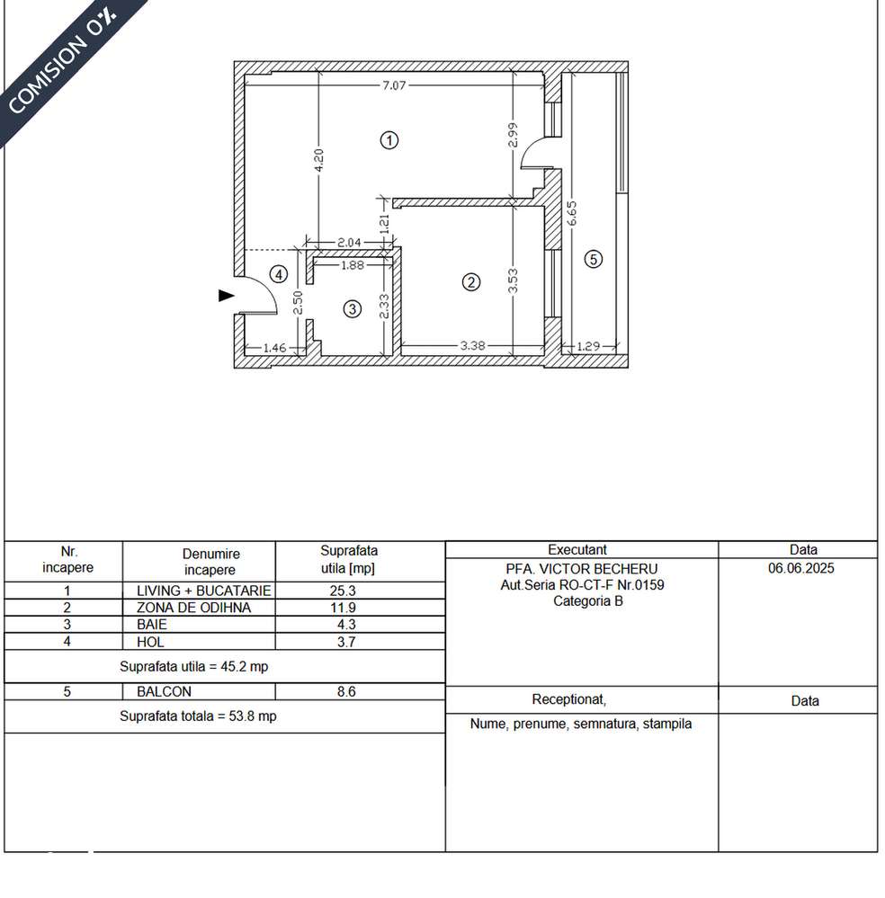
De vânzare apartament cu 2 camere, în suprafață de 45m² utili + balcon 9m² – 79.990€ la glet, TVA inclus. Apartamentul este situat la etajul 2 / 3, într-un bloc nou (2025), situat pe strada Iuliu Mani...
