119 500 €
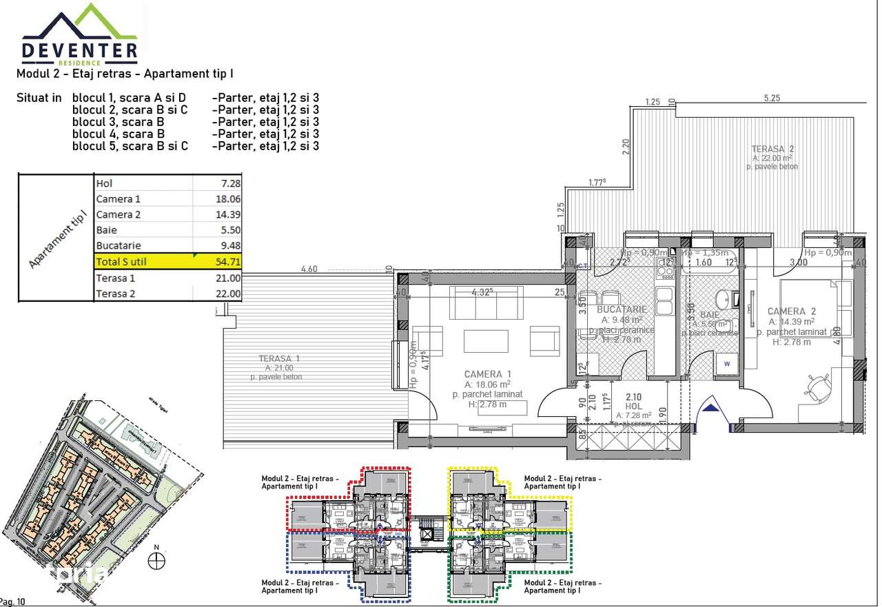
Penthouse 2 cam si 2 terase de 40 mp, incalz pardoseala, lift
Strada Deventer, Tineretului, Sibiu, Sibiu
- Numărul de camere
- 2 camere
- Suprafață
- 54 m²
- Prețul pe metru pătrat
- 2213 €/m²
- Etaj
- 4 etajul
Vezi descrierea anunțului
Vezi descrierea anunțului
Comision 0. Penthouse decomandat NOU in bloc de caramida cu structura din fier-beton, izolat cu polistiren de 15 cm, disponibil la etaj 4 in bloc cu lift. Este pozitionat in continuarea cartierului de...
