229 000 €
Apartament cu 3 camere decomandate | Zona Louis Pasteur - Zorilor
Zorilor, Cluj-Napoca, Cluj
- Numărul de camere
- 3 camere
- Suprafață
- 64 m²
- Prețul pe metru pătrat
- 3578 €/m²
- Etaj
- etajul 1
Vezi descrierea anunțului
Vezi descrierea anunțului
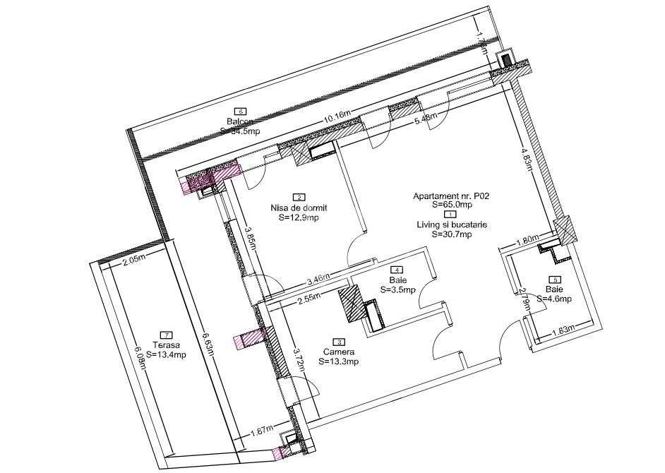
Vă propunem spre vânzare un apartament cu 3 camere decomandate, situat în cartierul Zorilor, în zona străzii Louis Pasteur.
Apartamentul se situează la etajul 1 într-un imobil dispus pe 4 etaje, și...
