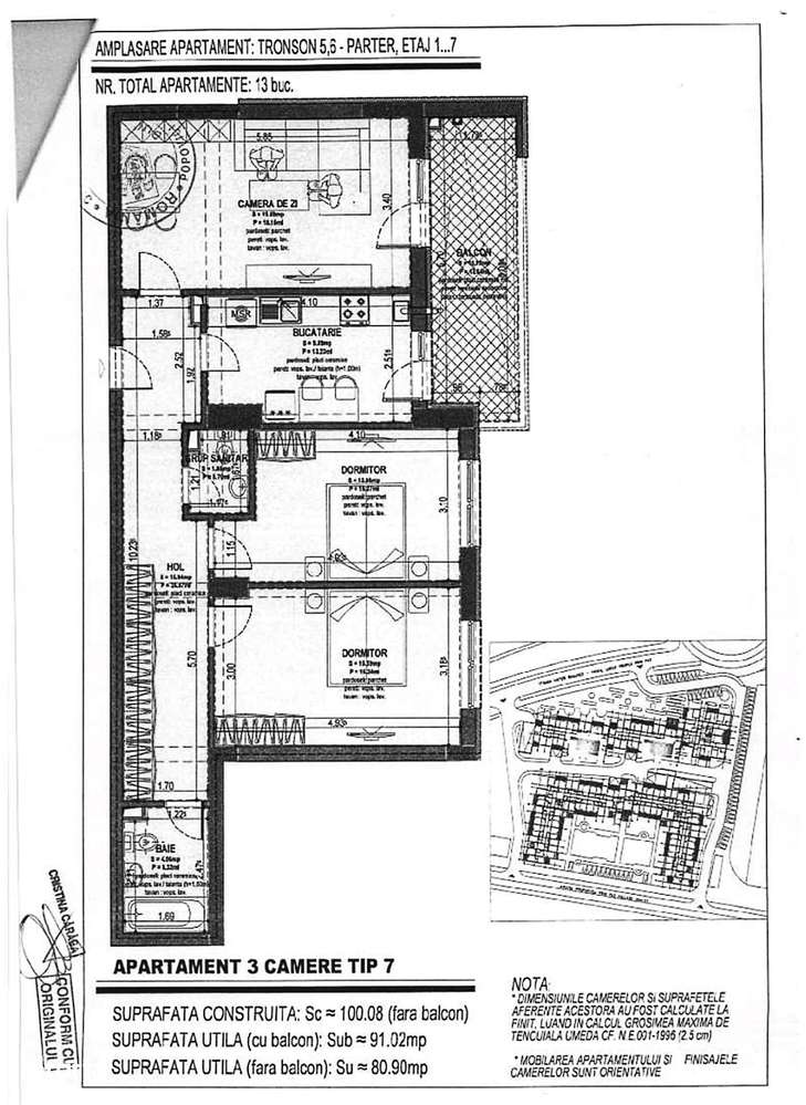
Vanzare 3 camere, 49 mp, zona Pantelimon, Biserica Marcuta
Strada Biserica Marcuta, Pantelimon, Sectorul 2, Bucuresti
- Numărul de camere
- 3 camere
- Suprafață
- 49 m²
- Prețul pe metru pătrat
- 1490 €/m²
- Etaj
- 6 etajul

Adresa sediului central: Bucuresti, Romania

Numărul ofertelor: 11
Sortează după
Vanzare 3 camere, 49 mp, zona Pantelimon, Biserica Marcuta
Strada Biserica Marcuta, Pantelimon, Sectorul 2, Bucuresti
Vanzare 3 camere TITAN, Aleea Barajul Lotru, metrou, parc
Aleea Barajul Lotru, Titan, Sectorul 3, Bucuresti
Vanzare 2 cam. DACIA, Piata Gemeni, str. V. Lascar, SU 68mp, ST. 94mp
Strada Vasile Lascar, Eminescu, Sectorul 2, Bucuresti
Vanzare 2 camere Drumul Tamerei, str. Brasov, metrou Parc Dr. Taberei
Strada Brasov, Drumul Taberei, Sectorul 6, Bucuresti
Vanzare 3 camere Metropolitan Residence, 90mp, et. 3, metrou N. Teclu
Strada Victor Brauner, Theodor Pallady, Sectorul 3, Bucuresti
Vanzare 2 camere Bulevardul Ion Mihalache, stradal, metrou
Bulevardul Ion Mihalache, Domenii, Sectorul 1, Bucuresti