85 000 €
Apartament 3 camere decomandat Micalaca
Centru, Arad, Arad
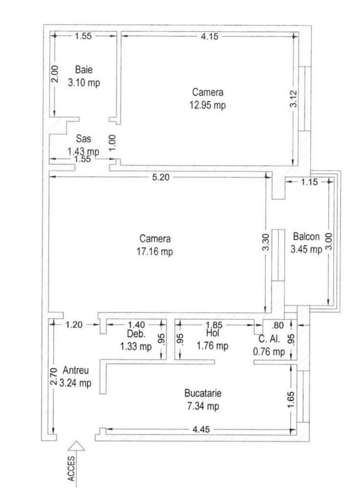
- Numărul de camere
- 3 camere
- Suprafață
- 87 m²
- Prețul pe metru pătrat
- 977 €/m²
Vezi descrierea anunțului
Vezi descrierea anunțului
Apartament 3 camere decomandat – 87 mp, parter – Zona Parc Orizont / Regina MariaVând apartament cu 3 camere decomandat, situat la parter, 2 bai,din care una cu geam,cu o suprafață de 87 mp conform CF...
