93 500 €
3cam.dec-2bai,2balcoane,mutare imediata,8min metrou Leonida
Popesti Leordeni, Ilfov
- Numărul de camere
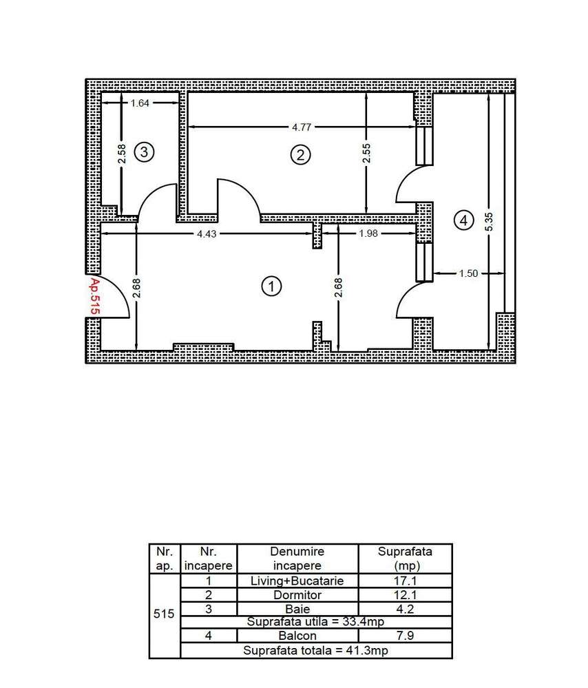
- 3 camere
- Suprafață
- 100 m²
- Prețul pe metru pătrat
- 935 €/m²
- Etaj
- 5 etajul
Vezi descrierea anunțului
Vezi descrierea anunțului
Proprietar, prin agentie,
vand apartament total decomandat, compus din 3 camere si dependinte, doua balcoane(unul comun celor doua dormitoare si unul comun livingului si bucatariei), modern, mobila...
