194 800 €
4City North| 3 camere mobilat utilat cu parcare inclusa si boxa|Pipera
Pipera, Sectorul 2, Bucuresti
- Numărul de camere
- 3 camere
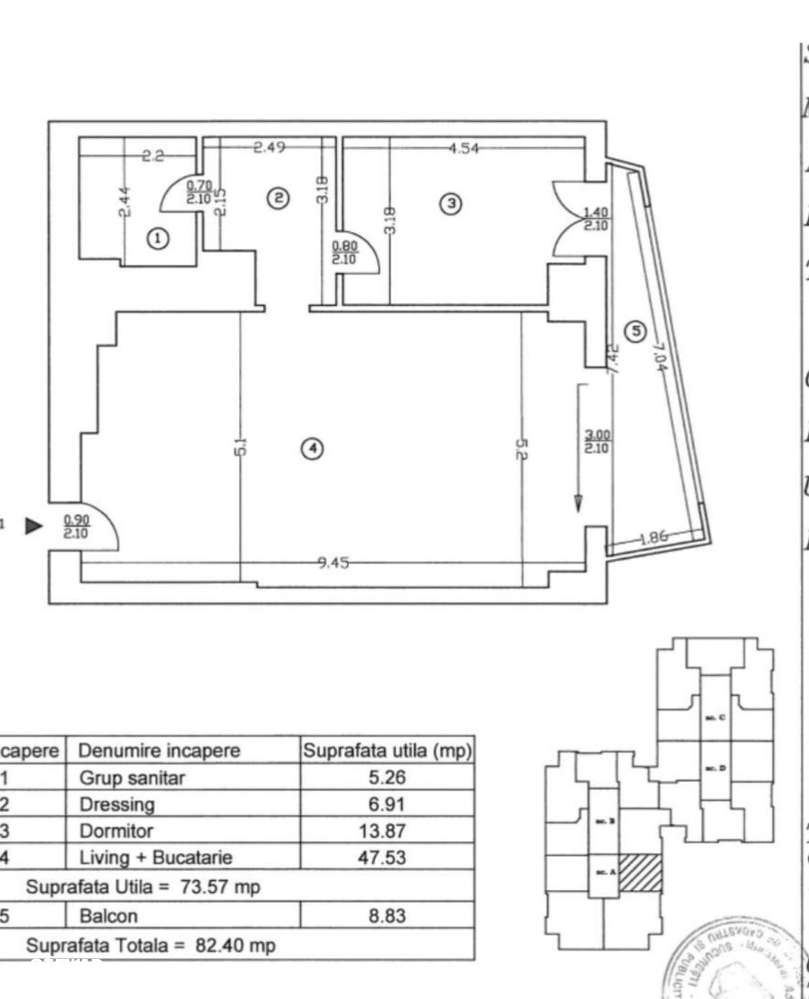
- Suprafață
- 69 m²
- Prețul pe metru pătrat
- 2823 €/m²
- Etaj
- parter
Vezi descrierea anunțului
Vezi descrierea anunțului
Va propunem spre vanzare un apartament cu 3 camere situat intr-un Complex Rezidential din zona de nord a capitalei - 4City North.Are o suprafata utila de 69 mp, este pozitionat la parter si se vinde c...
