67 135 €
Apartament 2 Camere Open - Space | Predare 12/2026 Faza 2 Piersicului
Dobroesti, Dobroesti, Ilfov
- Numărul de camere
- 2 camere
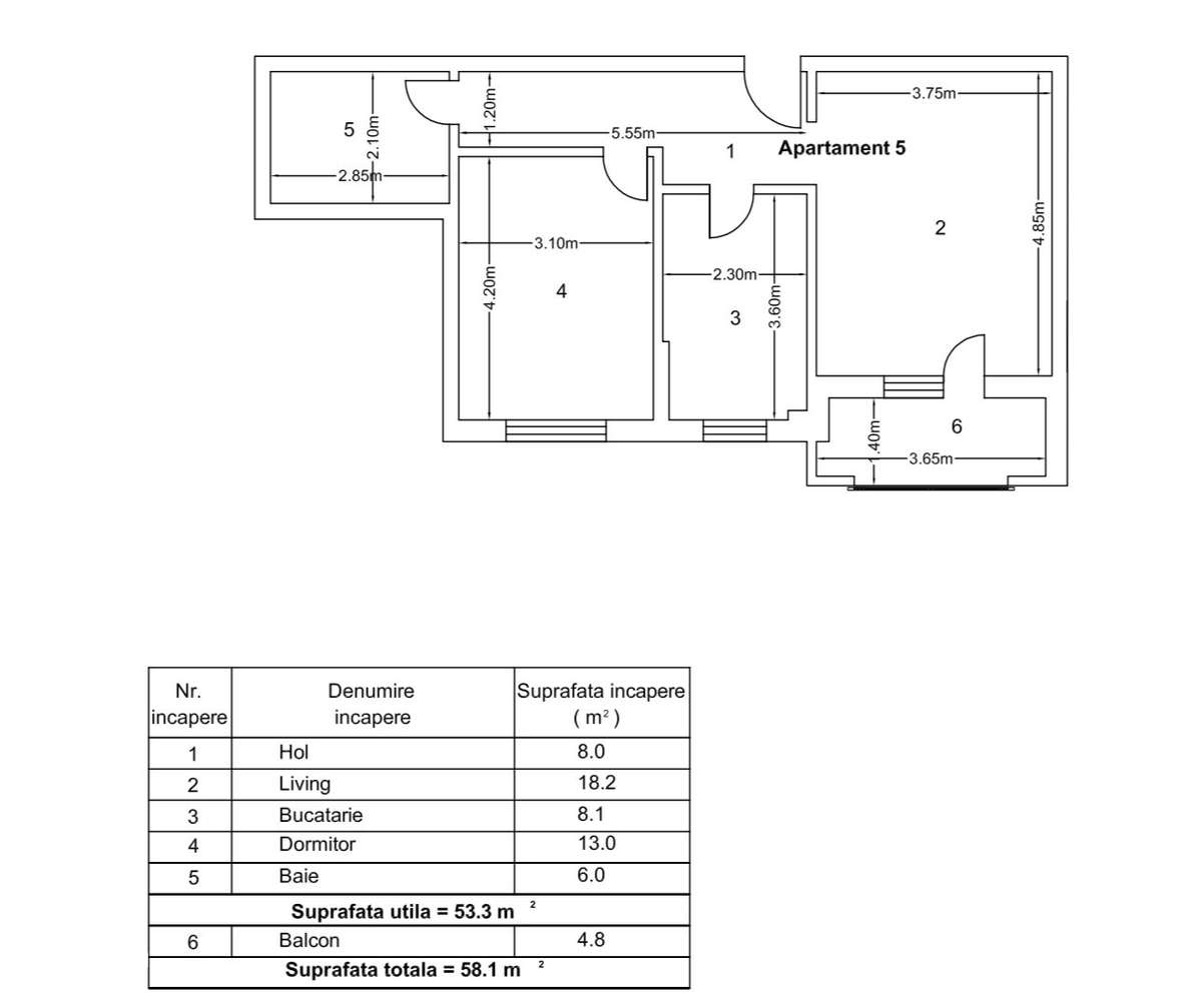
- Suprafață
- 46.3 m²
- Prețul pe metru pătrat
- 1450 €/m²
- Etaj
- 1 etajul
Vezi descrierea anunțului
Vezi descrierea anunțului
Apartament cu 2 camere open - space , 46,3 mp, situat la etajul 1 al unui nou Complex Rezidențial aflat pe Strada Piersicului nr. 10, cu stația de autobuz STB 343 la intrare.Faza 2 in momentul de față...

