Mergi la pagina principală

Apartament 2 camere tip studio 46mp Subcetate Sanpetru

Sanpetru, Brasov

    Apartament 2 camere tip studio 46mp Subcetate Sanpetru

    75 000 €
    1 531 €/m²
    Sanpetru, Brasov

    Apartament de vânzare

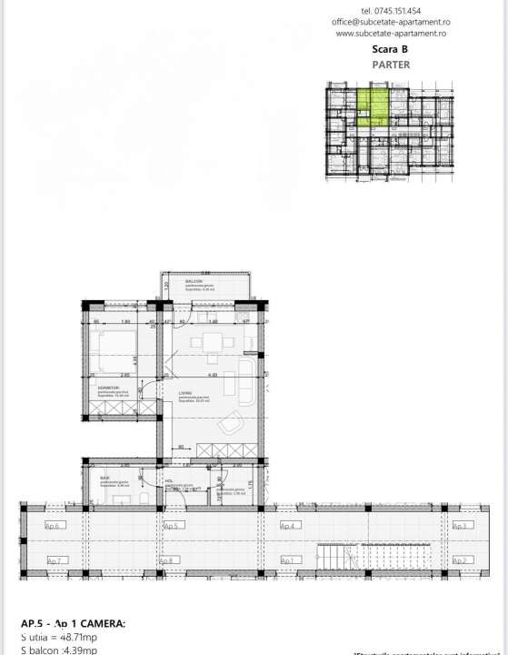
    Suprafață utilă:
    49 
    Numărul de camere:
    2
    Încălzire:
    centrală pe gaz
    Etaj:
    parter/3
    Chirie:
    fără informații
    Stare:
    gata de utilizare
    Tip proprietate:
    locuință nouă
    Forma de proprietate:
    drept de proprietate
    Liber de la:
    2025-12-17
    Tip vânzător:
    agenție
    Informații suplimentare:
    balcon

    Descriere

    ID: 9913387

    ID intern: P218041

    Vrei să primești notificări cu anunțuri similare?

    Activează alertele și nu pierde nicio ofertă

    Istoric și statistici

    Ultima actualizare: 17.12.2025

    Dată

    Modificare

    Preț

    XXXXXXXX
    XXXXXXXX
    XXXXXXXX
    XXXXXXXX
    XXXXXXXX
    XXXXXXXX
    XXvizualizări
    XXsalvări

    Conectează-te sau creează un cont pentru a accesa istoricul complet al anunțurilor, inclusiv modificările de preț

    Harta


    Despre agenție

    Siglă: BSKIMOBILIARE S.R.L
    BSKIMOBILIARE S.R.L
    Agenție imobiliară
    Drumul cu plopi 116, 507190, Sanpetru, Brasov (localitate)

    George Florin Besca

    BSKIMOBILIARE S.R.L
    Apartamente de vânzareNoi2 camereBrasovSanpetruApartament 2 camere tip studio 46mp Subcetate Sanpetru
    Storia
    • DESPRE STORIA

      • Despre noi
      • Prețuri
      • Cariere
      • Informații juridice
    • Pentru experții în imobiliare

    • Instrumente utile

    • PLATFORME

    • Hartă site

    • Contact

    URMĂREȘTE-NE PE:

    Aplicații mobile:

    • AppStore
    • Google Play

    © 2025 Storia, Grupul OLX

    • Condiții de utilizare
    • Politica de confidențialitate