1 / 12
600 €4 €/m²
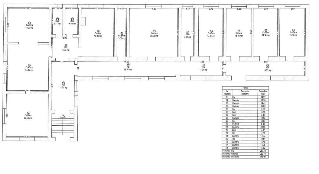
Casa individuala cu 4 camere de inchiriat, 581 mp de teren, zona centr
Sebes, Alba
- Numărul de camere
- 4 camere
- Prețul pe metru pătrat
- 140 m²
Vezi descrierea anunțului
Vezi descrierea anunțului
Blitz va oferă spre inchiriere o casă cu 4 camere deosebită, situată într-o zonă bună și apreciată, cu un potențial remarcabil atât pentru locuință personală, cât și pentru afacere sau investiție imob...
BLITZAgenție imobiliară
