1 / 11
185 000 €1028 €/m²
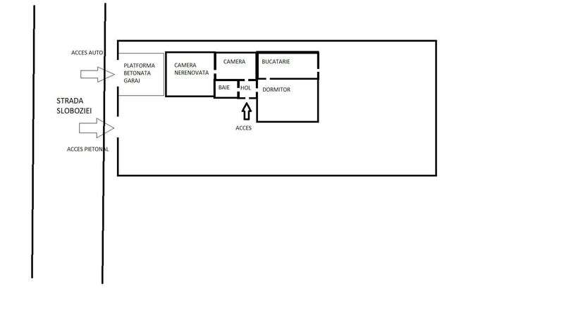
Proprietate ultracentrala cu piscina + garaj si anexa
Strada Dreptatii, Giurgiu, Giurgiu
- Numărul de camere
- 4 camere
- Prețul pe metru pătrat
- 180 m²
Vezi descrierea anunțului
Vezi descrierea anunțului
Vand proprietate ultracentrala de lux, cu compartimentare decomandata, camere spatioase, material de constructie din caramida, vopsea decorativa, piscina cu gresie mozaic din sticla, complet mobilata,...
Proprietar
