1 / 7
138 000 €1663 €/m²
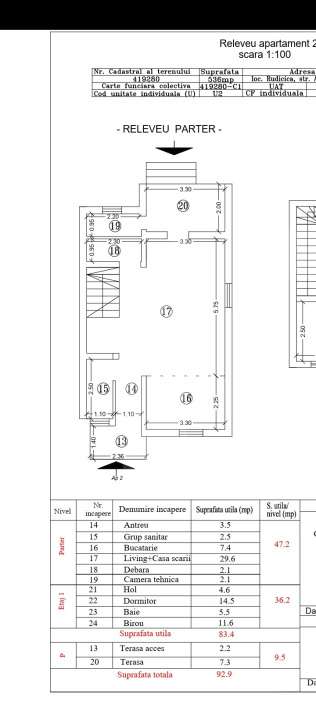
Jumatate Duplex Mosnita 83 mp 138.000 Euro
Rudicica, Mosnita Noua, Timis
- Numărul de camere
- 3 camere
- Prețul pe metru pătrat
- 83 m²
Vezi descrierea anunțului
Vezi descrierea anunțului
Blitz Imobiliare va propune urmatoarea oferta - Jumătate de duplex modern de vânzare în zona Rudicica – Calea Urseni, apartinand de Mosnita Noua.Localizare excelentă – înainte de centură, într-o zonă ...
BLITZAgenție imobiliară
